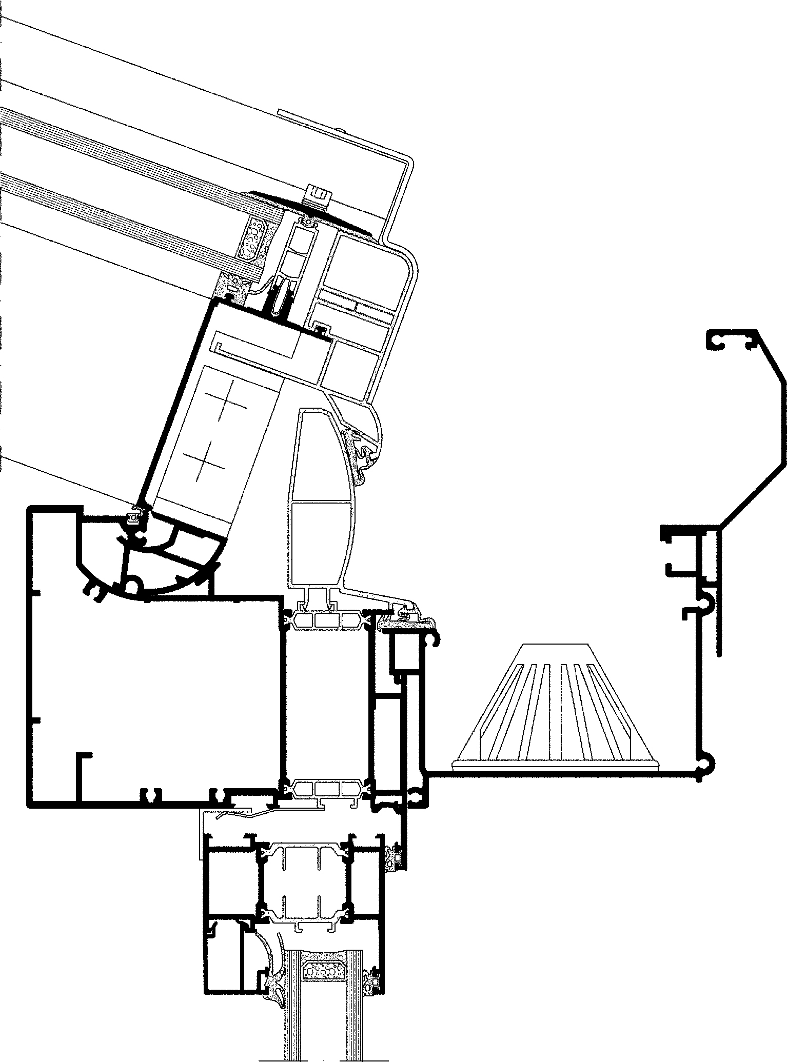
Systembeschreibung
Dieses System ist in allen Bereichen voll wärmegedämmt. Die schmalen Ansichtsbreiten bieten Ihnen eine filigrane Optik. Viele Wintergartentypen, vom einfachen Pultdach bis hin zum komplizierten Polygondach, können durch die besonderen Verarbeitungsvorteile auf einfachste Weise hergestellt werden. Höchste Standsicherheit gewährleistet eine spezielle Schraubverbindungstechnik. Alle tragenden Profile können mit handelsüblichen Stahlrohren verstärkt werden. Sonnenschutz ist innen und außen optimal zu befestigen. Wandanschlussvarianten und ein leistungsfähiges Rinnensystem runden das System AT 430 ab. Die Pfosten (Stützen) sind kompatibel mit allen AKOTHERM Fenster- und Türsystemen sowie AT 750 HS.
Technische Merkmale

Ansichtsbreite
Sparren 60 mm, Riegel 50 mm

Verglasung
26 bis 36 mm

Wärmedurchgang
nach EN 12412-2:Uf = 1,5 -2,2 W / (m² K)
Ihre Vorteile
- Optimale Wärmedämmung
- Große Flexibilität
- Attraktive Optik durch die schmalen Ansichtsbreiten
- Kompatibilität der Pfosten zum bestehenden AKOTHERM-System AT 750 HS


