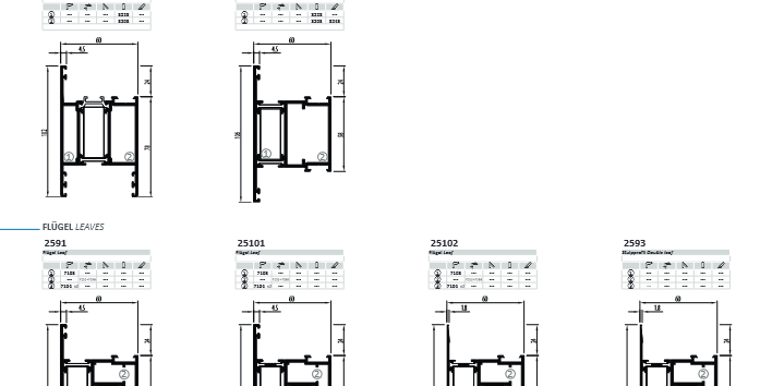
UncategorizedWall Plans Share Share on FacebookShare on Facebook Share on XShare on X Pin itShare on Pinterest Share on LinkedInShare on LinkedIn Share on WhatsAppShare on WhatsApp Post navigationPreviousPrevious post:AT 790 SI – 02/2019NextNext post:AT 740 SI-D – 02/2019Weitere BeiträgeProduct guide for components2. October 2025AT 84028. November 2024AKOTHERM Technology+ Magazine Spring 202212. July 2022Automatic Door Seal 17/17mm – 11/202112. July 2022